Maison à vendre Baie-Saint-Paul - sp890
info_outlineDescription
Description
NOUVEAU DÉVELOPPEMENT ECOQUARTIER DES MOISSONS: superbe jumelé AVEC GARAGE en construction, disponible pour 31 octobre 2025. Construction de grande qualité, belle cuisine, grand ilot, comptoir en Quartz. Très lumineux, grande fenestration. Espace de vie à aire ouverte. 1 chambre au RDC avec salle de bain complète. 2 chambres au sous-sol, salle de bains, salle familiale, atelier et rangement. Accès direcement au sous-sol par le garage. Terrain aménagé. Tout neuf, tout beau, sans surprise! A proximité de tous les services Baie St-Paul. Écoles, épiceries, hôpital, aréna. Le nouveau quartier résidentiel ou il fait bon vivre ! CLÉ EN MAIN
- Nouveau secteur résidentiel de Baie St-Paul en développement, appelé ECOQUARIER DE MOISSONS - Secteur recherché, à proximité de tous les services - Projet clé en main, en construction, garantie maison neuve
Type de propriété
- Type :
- Maison
- Année de construction :
- 0
Unités
- Nombre d'unités principales :
- 1
- Unités principales :
- 1 × 12 1/2
Bâtiment
- Façade :
- 11.58 Mètres
- Profondeur :
- 12.80 Mètres
- Forme irrégulière :
- Oui
Inclusions
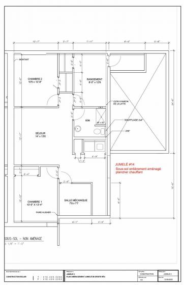
- INTÉRIEUR: Thermopompe RDC, 12 000 BTU, aspirateur central et ses accessoires, grand balcon en fibre de verre 24' x 8' garde-corps en verre, escalier en bois. SOUS-SOL entièrement aménagé avec plancher chauffant. EXTÉRIEUR: Garage (communiquant avec sous-sol), trottoir et bordure en béton, stationnement en gravier et cour gazonnée INCLUSIONS GÉNÉRALES: enregistrement garantie maison neuve GCR, certificat de localisation
Terrain
- Façade :
- 13.50 Mètres
- Profondeur :
- 28.00 Mètres
- Superficie :
- 378.00 Mètres carrés
- Forme irrégulière :
- Non
Exclusions
- Non meublé
Détails des pièces
1er niveau/RDC
- Hall d'entrée (11.0x4.0 P)
- Cuisine (8.6x13.3 P)
- Salle à manger (14.0x13.0 P)
- Salon (14.0x11.0 P)
- Chambre à coucher principale (10.9x13.9 P)
- Salle de bains (10.3x8.0 P)
Sous-sol
- Salle familiale (14.0x13.6 P)
- Chambre à coucher (10.3x13.6 P)
- Chambre à coucher (10.0x10.9 P)
- Salle de bains (11.3x7.3 P)
- Atelier (11.6x12.3 P)
- Rangement (7.0x8.0 P)
emailDemande d'informations
Si vous avez déjà communiqué avec un autre courtier que celui proposé, nous vous demandons de le sélectionner.
- AA :
- Courtier immobilier résidentiel et commercial agréé
- AF :
- Courtier immobilier résidentiel et commercial
- CRES :
- Courtier immobilier résidentiel
En complétant les champs de ce formulaire, vous consentez à transmettre vos informations pour des fins de suivi selon les dispositions de nos Conditions d'utilisation et politique de confidentialité.
Vous n'avez pas trouvé ?
Communiquez
avec nous!
Lynda Blouin
Courtier immobilier résidentiel et commercial
418 435-5454|5142444834











